deutsch
|
english
Suche
Über uns
Produkte
Qualität
Technik
Partner
Kontakt
Sicherheit
Schnittzeichnungen
Kunststoff - Alu Profil 5000 / 3 Dichtungen
(
klicken für
Download
)
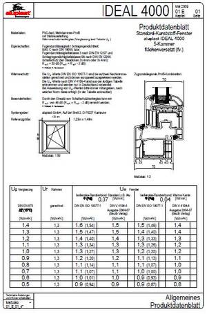
IDEAL 4000
(
klicken für
Download
)
IDEAL 5000
(
klicken für
Download
)
Schnittzeichnungen